Цена: 235 710
Современный септик Топас-С представляет собой индивидуальное сооружение очистного назначения, предназначенное для комфортного проживания в частном доме четырех человек, купить его по доступной цене можно прямо сейчас, обратившись в нашу компанию. Мы работаем без выходных и перерывов, поэтому готовы к диалогу в любое время. В онлайн-каталоге представлен огромный ассортимент товаров от наилучших производителей. На все пластиковые конструкции предлагается гарантия и все необходимые документы.
В отличие от аналогичных продуктов конкурентных брендов рассматриваемое устройство обладает массой положительных характеристик:
Неслучайно рассматриваемые станции являются лидерами рынка, так как предполагают высокое качество сборки. В нашей компании работают опытные и компетентные сотрудники, готовые проконсультировать по любому вопросу. Также, по вашему желанию, мы всегда готовы осуществить доставку септика Топас-С и выполнить комплекс монтажных работ.
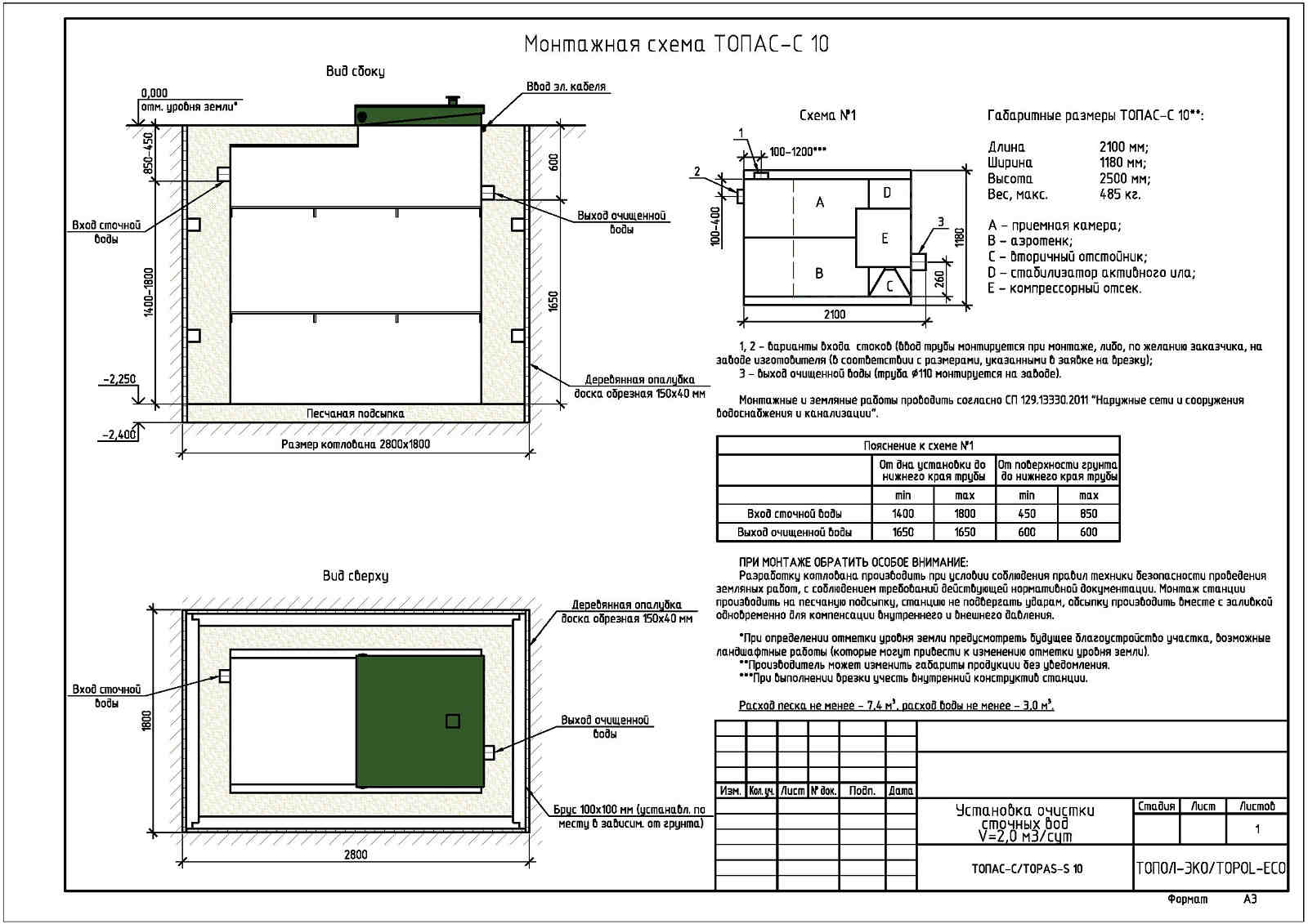
Он осуществляется в соответствии с ситуацией на участке. Конечно же, во внимание принимается отметка глубины залегания трубы, отвечающей за подведение сточных вод из дома. Кроме того, следует обратить внимание на способ, посредством которого отводятся сточные воды, это самотечные и принудительные системы. Во втором случае задействуется насос дренажного типа. Что касается схемы, она выбирается в соответствии с целым набором факторов:
В львиной доле ситуаций, как показывает практика, происходит установка принудительных систем. Но если речь идет о невысоком уровне грунтовых вод, могут использоваться самотечные агрегаты.
Наши мастера окажут комплекс услуг «под ключ», который включает в себя следующий перечень:
Если это оговаривается заранее, эксперты привозят песок и вывозят грунт, который остался. Также мы проконсультируем вас по дальнейшему использованию станции.


| Количество пользователей | 10 чел. |
| Производительность | 2 м3/сут. |
| Залповый сброс | 760 л. |
| Глубина подводящей трубы | 450-850 мм |
| Глубина отводящей трубы | 600 мм |
| Потребление электроэнергии | 1,5 кВ/сут. |
| Способ отвода очищенной воды | Самотечный |
| Размеры (ДхШхВ) | 2100 х 1180 х 2500 |
| Вес | 485 кг |
| Тип очистного устройства | аэрационная установка |
| Перечень работ | Цены (руб.) |
|---|---|
| Стандартная установка (цена зависит от модели септика) | от 19900 |
| Песок | от 19900 |
| Суглинок | от 20900 |
| Глина | от 21900 |
| Плывун | от 22900 |
| Торф | от 22900 |
| Доставка по Москве | бесплатная |
| Доставка по Московской области | бесплатная до 100 км от МКАД |
| Копка котлована (песок, суглинок, глина, плывун, торф) | включено в установку |
| Копка подводящей/отводящей траншеи с трубой d110/32 (4 м/пог.) | включено в установку |
| Прокладка электрокабеля ВВГ 3х1.5 ГОСТ в гофре (10 м/пог.) | включено в установку |
| Дополнительные работы | Цены (руб.) |
|---|---|
| Прокладка подводящей канализационной трубы d110 (свыше 4 м/пог.) | 1100 за м/п |
| Прокладка отводящей канализационной трубы d32 (свыше 4 м/пог.) | 850 за м/п |
| Прокладка электрокабеля ВВГ 3х1.5 ГОСТ в гофре (свыше 10 м/пог.) | 200 за м/п |
| Врезка в действующую канализацию | 1500 |
| Подкоп под отмосткой | 2000 |
| Завод трубы и электрического кабеля в дом | от 1050 |
| Установка фильтрующего ж/б колодца (2 кольца + крышка + доставка + установка) | от 18000 |
| Монтаж ревизии (включая материал) | от 2500 |
| Алмазное бурение фундамента | от 6000 |